‹ › ×

    Sigma

    BUILDING
    • FLOOR 3
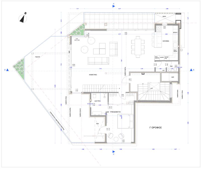
    • FLOOR 2

    1

    2

    3

    4

    PLANS

    VIDEO

    PANORAMA

    VIEWS

    GRAVANIS  HOME - PAPAGOS

    Architects : L.Kouvatsou - K.Zouganelis - D.Asariotakis 

     

     

    1 . PLANS

    click to view

    FLOOR 3

    FLOOR 3 - GALLERY

    2 . VIDEO PRESENTATION

    FLOOR 3 - LIVING

    Your browser does not support the video tag.

    FLOOR 3 - ORBIT

    Your browser does not support the video tag.

    SUN STUDY (INSIDE-OUTSIDE)

    Your browser does not support the video tag.
    Your browser does not support the video tag.

    3. PANORAMA

    click to view

    3 . VIEWS

     

    PLANS-DETAILS

    4. EXISTING

    All designs are property of SIGMA CONSTRUCTION can't be used without the written permission. 

     

     

    © Copyright : Sigma Construction ● Website created by rwmanos 2024